首 頁
物件搜尋
我的收藏
優質團隊
人才招募
購屋試算
聯絡我們
部落格
友善連結
B060板橋光復國小美寓
(AA6341461)
總價
1,488
萬元
降價通知我
座落
新北市板橋區光復街
坪數
24.08
坪
地坪
10.69
坪
單價
61.79
萬元
物件型態
公寓
用途現況
住家; 空屋
謄本用途
住家用
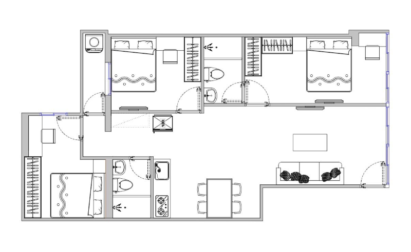
格局
3房/ 2廳/ 2衛
樓層
4 / 5樓
面臨路寬
4 米
戶數/電梯
每層2戶
屋齡
44年
建物結構
鋼筋混凝土造
車位
無
邊間
否
採光
2 面
公園綠地
埔墘公園
學校學區
市立光復國小 市立光復國中
交通站名
光復街, Y15板新
社區商場
傳統市場
特色說明
精美裝潢,即可入住,房間皆有對外窗,水電管線重配重拉,埔墘商圈,生活機能強,巷口就是站牌,一站進台北市。
權狀資料
主建物
20.45
坪
附屬建物
3.63
坪
公共設施
0.00
坪
土地面積
10.69
坪
公設車位
0.00
坪
權狀車位
0.00
坪
使用分區
住宅區
坪數=主建物+附屬建物+公共設施(包含公設車位)+權狀車位。
主建物係指客廳、餐廳、臥房、浴室、廚房等室內面積。
公共設施係指區分所有建物之全部或部分所有共用之建物面積,像是樓梯間、電梯間、屋頂突出物等。
上述係由一平方公尺=0.3025坪換算,詳細資料仍以地政機關核發之謄本為準。
板橋新埔加盟店
新板頂贏國際事業股份有限公司
(02)2257-0111
歡迎洽詢門市值班人員!
您好,我是吳鴻暉。
請撥門市電話
(02)2257-0111
由我為您提供服務。
環景照片
※ 本網頁所刊登照片如為道路街景或土地示意圖,非廣告標的所在地僅供參考,實際狀況請依使用執照或謄本所載為準。
更多物件
 同區類似物件推薦:
B045板橋車站二樓美寓免爬高
1,539萬元
/
24.93坪
B030長江路公寓鼎加
1,490萬元
/
36.48坪
B051新埔全新裝潢美寓
1,580萬元
/
28.80坪
資料處理中,請稍等。